dz̸¿çÏßÁ¬ÐøÁº¸½×Åʽ·À»¤ÅïÊ©¹¤
ä¯ÀÀ´ÎÊý£º0
·¢²¼Ê±¼ä£º2015-01-26 19:06:26
ÕªÒª:¿ç¹«Â·¡¢Ìú·Á¬ÐøÁº±¹×ìÊ©¹¤£¬²ÉÓø½×Åʽ·À»¤èò×÷ÎªËæ¹ÒÀºÒƶ¯µÄ·À»¤½á¹¹£¬Æä»ù±¾ÔÀíÊǽáºÏÊ©¹¤ÏÖ³¡Êµ¼ÊÇé¿ö£¬½èÖúÐü¹àÊ©¹¤¹ÒÀº£¬ÔÚ¹ÒÀºËÄÖܼ°µ×Ä£ÉÏÆº½Ó·À»¤Æ½Ì¨£¬·À»¤Æ½Ì¨Íâ²à°²×°·Àµç°å£¬ËÄÖÜÉèÀïΧµµ£¬ÒÔ´ïµ½·ÀË®¡¢·Àµç¡¢·À×¹ÎïµÄÄ¿µÄ¡£±¾ÎĽáºÏ»¦À¥Ìú·¿ÍÔËרÏßÏôÉ½ÌØ´óÇż°L1~L4ÁªÂçÏß´óÇÅÁá¼ÈÓÐÌú·Ïß¼°¹«Â·Á¬ÐøÁº¸½×Åʽ·À»¤èòµÄÊ©¹¤Êµ¼ù£¬Ö÷Òª¶Ô¸½×Åʽ·À»¤èòµÄÓŵ㡢¹¦ÄÜ¡¢¹¹Ô졢ʩ¹¤²½ÖèºÍÖ÷Ҫʩ¹¤¹¤ÒÕ½øÐÐ̽ÌÖ¡£½á¹û±íÃ÷£¬±¾ÎÄ̽ÌÖµÄÊ©¹¤¹¤ÒÕºÏÀí¡¢¿ÉÐУ¬Îª½ñºóͬÀ๫·¡¢Ìú·¿ç¼ÈÓÐÌú·ÇÅÁ»Ê©¹¤Ìṩ·î¿¼¡£
ÒýÑÔ:
Ëæ×ŸßÌú½¨ÉèµÄ·¢Õ¹£¬ÇÅÁº½¨ÉèÔÚÌú·½¨ÉèÖÐÕ¼ÓеıÈÖØÔ½À´Ô½´ó£¬¿çÔ½¹«Â·ºÍÌú·Á¬ÐøÁº²ÉÓÃÐü±Û·¨Ê©¹¤£¬Æä·À»¤ÅïÐÎʽ¸ù¾Ýʵ¼ÊÇé¿ö£¬Ò»°ã²ÉÓõØÃæ¹Ì¶¨·À»¤ÅïºÍ¸½×ÅÊ½ÒÆ¶¯·À»¤Åï¡£¸ù¾ÝÐèÒª£¬¸½×ÅÊ½ÒÆ¶¯·À»¤èòµÄʹÓÃÔ½À´Ô½¶à£¬ÓëµØÃæ¹Ì¶¨Ê½·À»¤ÅïÏà±È£¬Æä¾ßÓо¼Ã¡¢·½±ã¡¢¿ìËÙµÄÌØµã£¬²¢ÇÒ¼õÉÙÁ˶ԿçÔ½Ïß·µÄÓ°Ï죬ÓÐЧ±£Ö¤ÁËÏÂÃæÏß·µÄÕý³£ÔËӪʹÓᣱ¾ÎĽáºÏ»¦À¥Ìú·¿ÍÔËרÏßÏôÉ½ÌØ´óÇż°L1~L4ÁªÂçÏß´óÇÅ¿ç
¼ÈÓй«Â·¡¢Ìú·Á¬ÐøÁº¸½×Åʽ·À»¤ÅïµÄÊ©¹¤Îª±³¾°£¬Ö÷Òª¶Ô¸½×Åʽ·À»¤ÅïµÄ¹¦ÄÜ¡¢¹¹Ô졢ʩ¹¤²½ÖèºÍÖ÷Ҫʩ¹¤¹¤ÒÕ½øÐÐ̽Ë÷£¬Îª¸ÃÀ๫·¡¢Ìú·¿ç¼ÈÓÐÌú·ÇÅÁºÊ©¹¤»ýÀÛ¾ÑéºÍÌṩ²Î¿¼¡£
Ò»¡¢¹¤³Ì¸Å¿ö£º
ÏôÉ½ÌØ´óÇÅÓÚDK18+852.814ºÍDK 18+995. 000´¦¿çÔ½ÏôÓêÉÏÐÐÏߺÍÄÏ»·Â·ÓëгǷ½»²æ¿Ú£¬¿çÔ½ÐÎʽΪ70+125+70mÁ¬ÐøÁº±ß¿ç¡¢Öпç¿çÔ½£¬ÖÐÖ§µã½ØÃæÖÐÐÄÁº¸ß9. 2m,¶ËÖ§×ù´¦¼°±ß¿çÖ±Ï߶κͿçÖд¦Îª5. 2m¡£ÏäÁº¶¥¿í12. 0m£¬ÏäÁºµ×¿í7. 0m£¬¶¥°åºñ50cm;µ×°åºñ¶È48. 5cm ^- 123. 8cm£¬°´ÇúÏ߱仯£¬0#¶Î³¤10. 0m£¬±ß¿çÐü±Û13¸ö½Ú¶Î(ÖпçÐü±Û12¸ö½Ú¶Î)£¬½Ú¶Î³¤¶È4. 0m~5. 0m;ºÏÁú¶Î³¤2. 0m£¬±ß¿çÏÖ½½¶Î³¤3. 25m.ÓëÏô¸¦ÉÏÐÐÏ߼нÇΪ960£¬¿çÔ½´¦Ïô¸¦ÉÏÐÐÏßÀï³ÌΪK4+385¡£¿çÔ½´¦ÄÏ»·Â·ÎªË«ÏòËijµµÀ£¬Â·ÃæÉè¼Æ±ê¸ßΪ6. 09m;¸ÃÁªÁ¬ÐøÁºÁ½Ö÷¶Õ¸ß¶È·Ö±ðΪ28. 5m. 31. 5m£¬½¨³ÉºóµÄÇÅÁºÁºµ×µ½Ïô¸¦ÉÏÐÐÏß¼°ÄÏ»·Â·ÓëгǷ½»²æ¿Ú·Ö±ðÂú×ã7. 96m, 5. 0m¾»¸ßµÄÒªÇó¡£
¶þ¡¢·À»¤ÅïÑ¡Ôñ£º
¿çÏßÊ©¹¤Ê±£¬±ØÐë¶ÔËù¿çÏß·½øÐзÀ»¤.ÒÔǰ³£ÓõĵØÃæ¹Ì¶¨Ê½·À»¤èò£¬ÔÚÁ¬Ðø¿çԽϲ¿Ïß·ͶӰ·¶Î§ÄÚ£¬Êʵ±¼Ó´ó·¶Î§£¬È«²¿½øÐзÀ»¤¡£·À»¤ÅïÒ»°ãÖ÷Ìå½á¹¹ÓÉÁ¢ÖùÖ§¼ÜºÍÉϲ¿¶¥Åï×éºÍ¶ø³É£¬½á¹¹Éϲ¿ÆÌÉè¸ôÀë²ã(½á¹¹×é³ÉΪѹËõ½ººÏ°å+Ï𽺰å+Ò»²ãÎÞ·ÄÍÁ¹¤²¼£¬¿¹³å»÷Âú×ã80kg/mm2)£¬ºáÁºµ×²¿Ó÷Àµç°å¾øÔµ¡£Á¢ÖùÖ§¼Ü²ÉÓøֹÜÁ¢Öù»òÕ߸ֹܸ˼þ´î½ÓÐγɡ£·ÀµçÅïÊ©¹¤Íê³Éºó£¬Í¨¹ý±â¸Ö½«·ÀµçÅï½ÓµØ¡£
¸½×ÅÊ½ÒÆ¶¯·À»¤Åï²ÉÓÃÔÚ¹ÒÀºµ×²¿¼°ËÄÖÜ´îÉè·â±Õʽ·À»¤Å¹Ì¶¨µ½¹ÒÀºÉÏÐγÉÒ»ÆðÒÆ¶¯µÄ·À»¤ÐÎʽ·À»¤Åï¡£ÆäÓŵãÌåÏÖÔÚ:
1.¾¼Ã£¬Óë¹Ì¶¨Ê½·À»¤ÅïÏà±È£¬ÆäʹÓõIJÄÁÏÉÙ¡£
2.·½±ã£¬ÔÚ¿çÏßÊ©¹¤ÖУ¬¹Ì¶¨Ê½·À»¤ÅïÒªÔÚ¼ÈÓÐÏß·ÉÏ´îÉ裬¶Ô¼ÈÓÐÏß·µÄÓ°Ïì±È½Ï´ó£¬Õ¼ÓÃλÖã¬Ó°Ïì¼ÈÓÐÏß·µÄÕý³£ÔËÓª£¬ÓÈÆäÊÇÌú·ʩ¹¤£¬±ØÐëÒªÔÚ·âËøµãÄÚÊ©¹¤£¬Ó°Ïì¸ü´ó£¬°²È«·çÏÕ´ó;¸½×ÅÊ½ÒÆ¶¯·À»¤Åï¿ÉÔÚÏßÍâ´î²ð£¬°²È«·çÏÕС¡£
3.¿ìËÙ£¬¸½×Åʽ·À»¤ÅïÔÚÊ©¹¤Ê±¶Ô¼ÈÓÐÏß·µÄÓ°ÏìС£¬ÊÜÏÞÖÆÌõ¼þÉÙ£¬ÔòÏàÓ¦»á¼õÉÙÊÜÓ°ÏìËùµ¢ÎóµÄʱ¼ä£¬Ëõ¶ÌÊ©¹¤¹¤ÆÚ¡£
¸½×Åʽ·À»¤ÅïµÄÊ©¹¤±ØÐëÂú×ãϲ¿Ïß·¾»¿ÕµÄÒªÇó£¬ÔÚ±¾¹¤³ÌÖУ¬Ê¹Óø½×Åʽ·À»¤ÅïÂú×ãϲ¿Ïß·¾»¿ÕµÄÒªÇó¡£
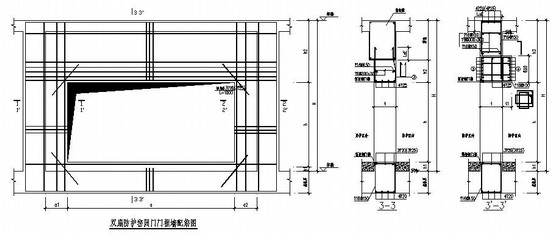
Èý¡¢·À»¤Åï°²×°Ê©¹¤£º
·À»¤Åï¶ÔÁ¬ÐøÁºµ±Ç°Ê©¹¤½Ú¶ÎÈ«·½Î»½øÐзÀ»¤£¬ÔÚËÄÖܼ°Ï²¿ÒªÓÐÒ»¶¨µÄ×÷Òµ¿Õ¼ä¡£·À»¤ÅïÁ½²à¼°Ç°¶Ë²ÉÓÃ
¸ÖË¿ÍøºÍ±¡Ìú°å·À»¤£¬µ×ģϲÉÓÃÓë¹ÒÀºµ×Ä£Éè¼ÆÒ»ÌåµÄ·À»¤Æ½Ì¨£¬Æ½Ì¨Íâ°ü¾øÔµ°å£¬Óë¹ÒÀºÒ»ÌåÔÚÏß·½çÏÞÍâÆ´×°£¬Æä×÷ÓÃÊÇ·ÀÖ¹¿çÔ½Ïß·Á¬ÐøÁº¹ÒÀºÊ©¹¤Ê±¿ÉÄܵôÂä¹¹¼þºÍÊ©¹¤ÓÃË®Á÷϶ԼÈÓÐÏßÐгµ¡¢¼ÈÓÐÏßÉ豸µÄ°²È«Ó°Ïì¼°¼ÈÓÐÏ߸ßѹµç¶ÔÊ©¹¤ÈËÔ±µÄ°²È«Ó°Ïì¡£
(Ò»)µ×ģϷÀ»¤ÅïÊ©¹¤:
1.µ×Ä£ÏÂÆ½Ì¨¿ò¼Ü£¬¸ù¾ÝÇÅÁº³ß´çÒªÇ󣬿ò¼ÜÆ½Ãæ³ß´çÑ¡Ôñ14m*7m£¬Ã¿2m*3. 75mΪһ¸öСµ¥Ôª¡£¸ù¾Ýϲ¿Éè¼Æ³ÐÁ¦Ìص㣬¾¹ý¼ÆË㣬µ¥Ôª¿ò¼Ü²ÉÓÃL 75*6rs½Ç¸Ö£¬µ¥Ôª¿ò¼Ü¼ä½Ç¸ÖÁ¬½Ó²ÉÓú¸½ÓÁ¬½Ó£¬½Ç¸Öº¸·ì¸ß¶È6mmeÕû¸öµ×Ä£¿ò¼Üͨ¹ý±â¸ÖÓë¹ÒÀºµ×ģϵ×ݺáÁº½Â½ÓÁ¬½Ó£¬¿ò¼ÜÆ½ÃæÒª»ù±¾Ë®Æ½¡£¿ò¼Üƽ̨µ½µ×ģϱ£Ö¤50cm¸ßµÄ²Ù×÷¿Õ¼ä¡£½Ç¸ÖÉÏÿ¸ô0. 3m²¼ÖÃÒ»¸öê˨¿×£¬²¢ÒªÇóê˨¿×ÀÛ¼ÆÎó²î<<0. 5mm¡£Ã¿¸öµ¥Ôª¿ò¼Ü½Ç¸ÖÉÏÆÌÒ»¿é3mmºñ¸Ö°å£¬¿ò¼Üϸ½Ò»¿é·Àµç°å£¬´óСÓë¿ò¼ÜÍâ³ß´çÏàͬ¡£¸Ö°åÓë·Àµç°åºÍ½Ç¸Öͨ¹ý¿ò¼Ü½Ç¸ÖÉϵÄê˨¿×ÓÃM10*45¾øÔµÂÝ˨Á¬½Ó£¬¸Ö°åÓë½Ç¸Ö±ßÔµ²ÉÓÃÆø±£º¸µãº¸£¬Ã¿¸ô50cmº¸½ÓÒ»´Î£¬º¸·ì³¤5cmo¸Ö°åº¸½Óʱ£¬º¸½ÓÒªÀι̡£Ðè×¢ÒâÔÚ36VµçÔ´Ï£¬²ÉÓÃÐͺÅE4303¡¢ÅƺÅJ422YµÄº¸Ìõ½øÐк¸½Ó.ÕûÌå¼Ó¹¤Íê³ÉºóÔÚÌúƤ¼°ÂÝ˨Á¬½Ó´¦¾ùÓ¦²ÉÓû·ÑõÊ÷Ö¬ÃÜ·â´¦Àí¡£ÂÝ˨ͷλÖòÉÓû·ÑõÊ÷Ö¬½ºÕ³Ìù¾øÔµ°å¿é£¬ÔÚ·À»¤Åïµ×°åƽ̨Íâ²à°²×°·Àµç°å£¬ÏàÁÚ·Àµç°åÃÜÌù£¬ÎªÔ¤·ÀÁ½¿é·Àµç°åÖ®¼äÁôÓпÕ϶£¬ÓÃ20cm¿íÌõÐηÀµç°å½«Á½¿é·Àµç°å½Ó·ì´¦¸²¸Ç£¬ÓÃ8#ÂÝ˨Á¬½Ó;ÁíÍâÓÃ5 X 5cmµÄ·Àµç°å¿é(·Àµç°å¿éºñ15mm£¬ÄÚ×êÒ»Ö±¾¶18mm¡¢Éî10mmµÄÔ²¿×)½«ÂÝñ·À»¤ÆðÀ´£¬·Àµç°å¿éÓë·Àµç°åÓû·ÑõÊ÷Ö¬½ºÕ³Ìù¡£
2.·Àµç¾øÔµ°åµÄÑ¡Ôñ£¬Ä¿Ç°¹úÄÚÌú·ÏßÉϽӴ¥Íø´øµç×î¸ßΪ2. 75W·ü£¬·Àµç°åÔÚÑ¡²Äʱ£¬Ê×ÏÈÓ¦Âú×ã¿É¿¹¸ßѹ3. 3W·ü(1.2±¶µÄ°²È«ÏµÊý)µÄÒªÇ󣬯ä´ÎÓ¦¾ß±¸Ä͸ßΡ¢²»Ò×ȼÉÕµÄÌØÐÔ¡£·Àµç°åÔÚ½øÁÏ֮ǰ£¬Ó¦×ö¸ßѹµç»÷´©ÊµÑ飬²¢³ö¾ß¼ìÑ鱨¸æ£¬Âú×㿹¸ßѹ3. 3W·üµÄÒªÇ󷽿ɽøÁÏ¡£3240»·Ñõ·ÓÈ©²ãѹ²£Á§²¼°åÖʵؽÏÓ²£¬¾ßÓнϸߵĻúеºÍ½éµçÐÔÄÜ¡£5mmºñ·Àµç°å¾»÷´©ÊµÑé¼ìÑ飬¿É¿¹5W·ü¸ßѹ£¬Ã¿¿é³ß´çΪ1. 02 X 2. 02m¡£¾øÔµ°åҪѡÓÃÓÐ×ÊÖʳ§¼ÒÌṩ£¬ÇÒ½ø³¡ºóËÍÑùµ½ÓÐ×ÊÖʵļì²âµ¥Î»½øÐмì²â£¬¼ì²âºÏ¸ñºó·½¿ÉʹÓ᣷Àµçƽ̨×öºÃºó£¬ÒªÇëÓÐ×ÊÖʼì²âµ¥Î»½øÐмì²â£¬È·±£ÓÐ×ã¹»µÄ°²È«ÏµÊýºó·½ÄÜ¿çÔ½Ìú·¸ßѹÏßÊ©¹¤¡£
3.·À»¤ÅïËÄÖÜΧµ²°²×°£¬ÎªÁË´ïµ½·ÀË®¡¢·ÀÂäÎïµÄÒªÇó£¬ÔÚÆ½Ì¨ËÄÖÜÒ²±ØÐëÒª½øÐзâ±Õ´¦Àí£¬·Àֹƽ̨»ýË®Íùƽ̨ÍâÒç³ö£¬Ó°ÏìÏÂÃæÏß·µÄÕý³£ÔËÓª¡£ÔÚ¿ò¼Üƽ̨ËÄÖܽǸÖÉÏÿ¸ô²»´óÓÚ1. 5mº¸½ÓÒ»¸ùL 50*4mm½Ç¸Ö£¬ÊúÏòÿlm·Ö²¼Ò»¸ùºáÏòL 50*4mm½Ç¸Ö£¬º¸½ÓÔÚÊúÏò½Ç¸ÖÉÏ£¬Æ½Ì¨ºó²à½Ç¸Ö³¤µ½Áºµ×¼´¿É£¬ÕýÃæÓë²àÃæ½Ç¸ÖÒª³¬³öÁºÃæ1. 2Ãס£ËÄ²àÆ½ÃæÓýǸÖÉèÖöÌбÀ¸Ë£¬½Ç¶ÈÔÚ45¡ã~ 60¡ã¡£Ö®¼ä£¬ÒÔÐγÉÎȶ¨¿Õ¼ä½á¹¹¡£½Ç¸ÖÏÂÃælmͬÑùÒª×ê¿×£¬ÄÚÍâ·Ö±ð¸½ÉÏ3mmºñ¸Ö°åºÍ¾øÔµ·Àµç°å£¬ÃܱÕΧµ²¸ß¶ÈΪһ¿é¾øÔµ°å¸ß¶È1. 02m£¬ÓþøÔµÂÝ˨Á¬½Ó¡£¸Ö°åÒ²ÒªÓë½Ç¸Ö½øÐк¸½Ó´¦Àí£¬²¢²ÉÓû·ÑõÊ÷Ö¬ÃÜ·â´¦Àí£¬´¦Àí·½Ê½Óëµ×ģϿò¼Üƽ̨´¦ÀíÒ»Ñù¡£
4.µ×ģϷÀ»¤Åï¿ò¼Üƽ̨µÄ·ÀË®ÊÔÑ飬Ϊ±£Ö¤·À»¤Æ½Ì¨´ïµ½·ÀˮҪÇ󣬱ØÐë½øÐзÀ©ˮÊÔÑé¡£½«Æ½Ì¨ÄÚ×¢ÂúË®£¬¾²Ö¹5min£¬¼ì²éÊÇ·ñÓЩˮÏÖÏó£¬ÈôÓЩˮ£¬±ê³ö©ˮλÖ㬷ÅË®ºó½øÐв¹º¸£¬È·±£µ×°åƽ̨Ãܱղ»Â©Ë®¡£Í¬Ê±ÔÚ·À»¤Åïµ×°åƽ̨ÄÚÅ䱸һ̨³éË®±Ã(ÿСʱ¿É³éË®40m ³)£¬½«ÅÅË®¹ÜÒýÖÁÏÂÃæÏß·Í⣬±£Ö¤Ê©¹¤Ê±Æ½Ì¨ÄÚ²»Òª»ýË®£¬¼õÉÙ¹ÒÀº¸ºÖØ¡£Í¬Ê±Ê©¹¤ÖеôÂäÔÚ·À»¤Æ½Ì¨ÄÚµÄÔÓÎïºÍ»ìÄýÍÁÒ²Òª¼°Ê±ÇåÀí³öƽÁËÈę̈¡£
(¶þ)·À»¤Åïµ×Ä£ÒÔÉϲ¿·Ö°²×°:
ËÄÖܽǸֹǼܰ²×°ºÃºó£¬ÔÚ¾øÔµ°åÒÔÉϲ¿·Ö£¬ÔڹǼÜÄڲలװ5 X 5mm²»Ðâ¸Ö·À»¤Íø£¬Éϲ¿Óë¹Ç¼Ü¶¥Æëƽ£¬Ã¿¿é·À»¤Íø1. 2m¿í¡£·À»¤ÍøÓë¹Ç¼ÜÓÃÌúË¿°óÔú£¬Ã¿60cm°óÔúÒ»µÀ£¬ÏàÁÚÁ½¿é¸ÖË¿Íø½øÐаóÔú£¬·À»¤ÖÁÁº¶¥Ã棬ÁíÍ⽫ÁºÉÏÔ¤Áô¿×ÁÙʱ·â¶Â£¬ÔÚÒí°åÁ½²àÉèÖÃ10cm¸ßµ²Ë®Ì¨£¬·Àֹʩ¹¤ÓÃË®ÏòÁºÍâÅÅ·Å£¬Ó°ÏìÁºÏÂÔËÓªÏß·µÄÐгµ°²È«£¬Í¬Ê±Ò²ÓÐЧ×èµ²ÁËÊ©¹¤ÖÐÏòƽ̨ÏÂ×¹Îï¡£
¸ÖË¿Íø°²×°Íêºó£¬¸½×ÅÊ½ÒÆ¶¯·À»¤èò¾ÍÈ«²¿°²×°Íê³ÉÁË¡£ÎªÁ˱£Ö¤Á¬ÐøÁºÊ©¹¤Á½±ßÁ¦¾ØÆ½ºâÐÔ£¬ÔÚÁíÍâÒ»²àÒª¿¼ÂÇÆ½ºâÅäÖØ»ò×öÒ»¸öͬÑùµÄ·À»¤Å×öµ½²»Æ«ÔØ£¬ÒýÆðÖ§×ù»ò¶ÕÉí²úÉú²»Àû±ä»¯¡£¶ø±¾Á¬ÐøÁºÒ»±ß¿ç¼ÈÓÐÌú·£¬ÁíÒ»±ß¿ç¼ÈÓй«Â·£¬ËùÒÔÁ½²à¶¼×ö¸½×Åʽ·À»¤Åï¡£
ËÄ¡¢·À»¤Åï²ð³ýÊ©¹¤£º
Á¬ÐøÁºÊ©¹¤µ½ºÏ£¶Îʱ£¬Á½¸öÏàÏòµÄ¹ÒÀº±ØÐëÒªÏȲð³ýÒ»¸ö£¬ÒÔÁíÍâÒ»¸ö·À»¤Åï½øÐкÏ£¶ÎµÄ·À»¤£¬Ê©¹¤ÍêºÏ£¶ÎÔÙ²ð³ý¡£¿¼Âǵ½°²È«ºÍ²Ù×÷·½ÃæµÄÎÊÌ⣬¹ÒÀº±ØÐëºóÍËÖÁÁºÏ¼ÈÓÐÔËÓªÏß·Íâ²à²ð³ý¡£¹ÒÀººóÍËǰÐ轫ǰ¶Ë·À»¤Î§µ²¸ßÓÚÁºµ×Ä£²¿·Ö²ð³ý¡£¿¼ÂǺóÍËʱ¶ÔÏß·ºÍÈËÔ±µÄ°²È«·À»¤£¬¹ÒÀºÁ½²àΧµ²¸Ö°åºÍǰ¶Ë¸¹°åÍâ²à¸Ö°å²»²ð³ý¡£·À»¤ÅïËÄÖÜΧµ²²ð³ýÀûÓÃÁ¬ÐøÁºÏÂÃæÏß··âËøÊ±¼ä½øÐУ¬²ÉÓôÓÉÏÖÁϲð³ý£¬ÉÏÏ·ÖΪÁ½²ã£¬ÒÔ¸Ö°åºÍ¸ÖË¿·À»¤ÍøÎª½ç£¬ÏȲð³ý¸ÖË¿Íø£¬È»ºó²ð³ý¸Ö°åºÍ·Àµç¾øÔµ°å£¬×îºóÔÙ²ð³ýÔ¿½î¹Ç¼Ü¡£²ð³ýʱ²ÉÓÃÈ˹¤ÅäºÏÊÖÀºù«£¬ÊÖÄÃɰÂÖÅäºÏÑõÈ²ÑæÇиÿ²ã²ð³ýʱÓÉÒí°åÏò¹ÒÀºÇ°¶ËÖð¿é½øÐС£
(Ò»)¼ÈÓÐÏß·ÉÏ·½·À»¤Î§µ²²ð³ý²Ù×÷²½Öè::
1.²ð³ý5 X 5m
2.²ð³ý½Ç¸Ö¹Ç¼Ü£¬ÔÚÒª²ð³ýµÄ·À»¤Æ½Ì¨Ç°·½·À»¤Íø¹Ç¼ÜÉÏ·½°²×°2¸ö2tÊÖÀºù«(¹ÒÀºÇ°¶ËÔÚǰºáÁºÉÏÓá£20mm¸Ö½îº¸½ÓÊÖÀºù«¹Ò¹³£¬ÊÖÀºù«¹ÒÔÚ¹Ò¹³ÉÏ)£¬ÊÖÀºù«Ï¶˹³×¡Òª²ð³ýµÄ·À»¤Íø¹Ç¼Ü£¬½«ÊÖÀºù«µ÷ÖÁÁÙ½çÊÜÁ¦×´Ì¬¡£ÓÃɰÂÖÇиî¹Ç¼Ü½Ç¸Ö£¬Ï¶ËÖÁ·Àµç¾øÔµ°åÉÏ·½£¬±£ÁôÒ»¸ùºáÏò½Ç¸Ö£¬½«Ç°²à½Ç¸Ö¹Ç¼ÜÕûÌåÇиîÏÂÀ´¡£ÔÚ²ð³ý¹Ç¼Ü¿ìÈ«²¿ÇжÏʱ£¬ÁºÃæºÍÁºÄÚ¸÷°²ÅÅÁ½Ãû¹¤ÈË£¬·ÖÁ¢×óÓҲ࣬¸÷ÓÃÒ»¸ùX16¶þ¸Ö½î¹³×¡Ç°²à½Ç¸Ö¹Ç¼Ü£¬±£Ö¤¹Ç¼Ü½Ç¸ÖÈ«²¿ÇжϺ󣬲»»áËæÒâÒ¡°Ú¡£¹Ç¼Ü½Ç¸ÖÈ«²¿ÇжϺó£¬À¸Ö½îµÄ4ÈËͬʱ½«½Ç¸Ö¹Ç¼ÜÀµ½·À»¤Æ½Ì¨ÄÚ²¿£¬Í¨¹ýÊÖÀºù«½«¹Ç¼ÜÂýÂýÏ·ţ¬·Åµ½Æ½Ì¨ÉϺó½øÐзָ·Ö¸îʱ¿ÉÒÔ²ÉÓÃÑõÒÒȲ½øÐÐÇи·Ö¸îºó£¬È«²¿È˹¤×ªÖÁÁºÃ棬Ô˵½¼ÈÓÐÏßÍâ¡£
(¶þ)¼ÈÓÐÏß·Íâ·À»¤Î§µ²²ð³ý:
·À»¤Åïµ×°åƽ̨¼°Á½²àºÍºó²àµÄ½Ç¸Ö¹Ç¼ÜºÍ¸Ö°å¡¢¾øÔµ°åÓë¹ÒÀºµ×Ä£ÏµÍ³Ëæ¹ÒÀºÖ÷Îö¼ÜÒ»ÆðºóÍËÖÁ¼ÈÓÐÏßÍâ²à²ð³ý£¬Ö÷Îö¼ÜºóÍ˰´ÕÕ¹ÒÀº×ßÐеķ½·¨ÀûÓÃÁºÌåÔ¤Áô¿×°²È«ÍËÖÁ¼ÈÓÐÏßÍâ²à¡£
(Èý)ºÏ£¶Î·À»¤Åï²ð³ýÊ©¹¤:
ºÏ£¶ÎÊ©¹¤£¬ÀûÓÃÒ»²àÐü±Û¶Î¹ÒÀºÊ©¹¤£¬·À»¤ÅïµÄ²ð³ý£¬ÔÚÊ©¹¤Ç°¾ÍÒª½«¹ÒÀºÇ°¶Ë¸ß³öÁºµ×²¿·Ö·À»¤Î§µ²²ð³ý£¬²ð³ý·½·¨ÓëÉÏÃæ¶ÔÃæ·À»¤Åïǰ²àΧµ²²ð³ý·½·¨Ïàͬ¡£ºÏ£¶ÎÊ©¹¤Íê³Éºó£¬·À»¤èòÓë¹ÒÀºÒ»ÆðÍ˳öÏßÍâ²ð³ý¡£
Îå¡¢½áÓ
±¾¹¤ÒÕ²ÉÓõĸ½×Åʽ·À»¤Å±£ÁôÁË´«Í³µÄÂäµØÊ½·À»¤ÅïµÄÖ÷Òª¹¦ÄÜ£¬½â¾öÁËÔÚ¿çÏßÊ©¹¤Ê±ÔÚÏß·ÉÏ´îÉèÖ§¼ÜµÄÖî¶àÎÊÌâ¡£µ×°åƽ̨ËÄÖÜ·â±ÕµÄÏäÌ壬µ×°åƽ̨Íâ²à°ü¹ü·Àµç°å£¬¿É·ÀË®¡¢·Àµç¡¢·À×¹Î²¢ÔÚµ×°åÆ½Ì¨ÄÚ·ÅÖÃһ̨ÆûÓͳéË®±Ã£¬½â¾öÊ©¹¤½Ú¶ÎÊ©¹¤ÓÃˮֱ½ÓÅŷŵ½ÏÂÃæÏß·µÄÎÊÌâ:ÔÚÈý²àÉèÖ÷À»¤Î§µ²£¬¶¥²¿±ÈÁºÃæ¸ß³ö1. 2m£¬¿ÉÓÐЧ·Àֹʩ¹¤ÔÓÎïµôµ½ÏÂÃæÏß·ÉÏ£¬Ó°ÏìÐгµ°²È«;½«¹ÒÀºÖ÷Îö¼ÜÉèÖýӵØÏߣ¬½ÓµØÏßÓëÁºÌå½ÓµØ¸Ö½îÁ¬½Ó£¬±£Ö¤¼ÈÓÐÏߺÍÊ©¹¤ÈËÔ±°²È«.´«Í³µÄÂäµØÊ½·À»¤ÅӰÏì¼ÈÓÐÏßÔ½³¤£¬·À»¤Óµ´îÉèÔ½³¤£¬³É±¾Ô½¸ß£¬ÔÚÔËÓªÏß·ÉÏ´îÉè·À»¤Åï²»½ö²Ù×÷À§ÄÑ¡¢¶øÇÒ»á¸øÔËÓªÏß·»ù´¡ºÍÐгµ°²È«´øÀ´½Ï´óÓ°Ïì¡£¶ÔÏÂÃæÏß·ӰÏìСÁË£¬ÊÜÓ°ÏìµÄʱ¼ä¼õÉÙ£¬´ó´óÌá¸ßÁ˹¤×÷ЧÂÊ£¬½ÚÊ¡ÁËÊ©¹¤Ê±¼ä¡£
²ÉÓÃÔÚ¹ÒÀºÏ°²×°¸½×Åʽ·À»¤èò²»½ö¿ÉÒÔ½â¾ö´îÉèÂäµØÊ½Ö§¼ÜµÄÖî¶àÎÊÌ⣬¶øÇÒÖ»ÐèÔÚÁ½²àÐü±Û¹ÒÀºÏ°²×°Ò»¸öÐü±Û¿é¶Î³¤¶ÈµÄ·À»¤Å´ó´ó½ÚÔ¼Á˳ɱ¾¡£º¼¸¦¿ÍÔËרÏßÇ®½Ìú·ÐÂÇÅÄÏÒýÇſ绦À¥Ïß(70+125+70) mÁ¬ÐøÁºÊ¹Óô˹¤ÒÕ£¬¾¼ÃÐ§ÒæÏÔÖø¡£
±¾¹¤ÒÕÊÊÓÃÓÚ¿ç¼ÈÓÐÌú·¡¢¹«Â·¡¢ºÓµÀ¾ßÓÐ×ã¹»¾»¿ÕµÄÐü±ÛÊ©¹¤Á¬ÐøÁº¡£
×ÜÖ®£¬±¾ÎÄËù̽ÌÖµÄÔÚ¹ÒÀºÏ¸½×Åʽ·À»¤ÅïÊ©¹¤¹¤ÒÕ¾¹¤³Ìʵ¼ùÖ¤Ã÷ÊǺÏÀí¡¢°²È«¡¢¿ÉÐеģ¬ÄÜΪ½ñºóÆäËûͬÀ๤³Ì½¨ÉèÌṩ²Î¿¼¡£



















